新築一戸建住宅

ジョイタウン道林 能美市 浜町 平屋 新築分譲 3LDK

1 / 4

外観パース

【外観パース】外観イメージ

間取り

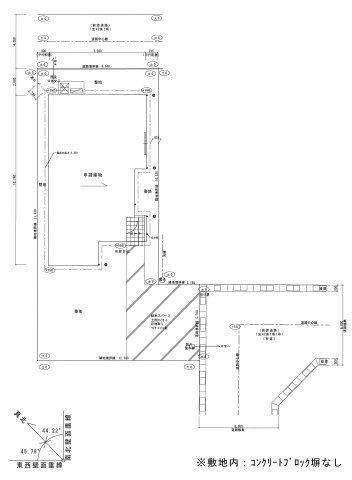
【間取り】

その他

【その他】配置図

外観パース

【外観パース】外観イメージ

外観パース 間取り その他 外観パース

価格

2,390万円

交通 IRいしかわ鉄道 「能美根上」駅 徒歩18分
浜町南バス停下車 徒歩2分
間取り 3LDK 所在地 石川県能美市浜町 辰1番2
建物面積/坪数 80.06㎡ / 24.21坪 土地面積/坪数 218.59㎡ / 66.12坪

利回りとは

「利回り」は、当該不動産の1年間の予定賃料収入の不動産取得対価に対する割合であり、公租公課その他当該物件を維持するために必要な費用の控除前のものです。
また、予定賃料収入が確実に得られる事を保証するものではありません。

×

セールスポイント

JOYTOWN道林(ジョイタウン道林)地内 能美市浜町 平屋分譲 3LDK 今夏ごろ完成予定

今夏ごろ完成予定 平屋の新築分譲(3LDK)
北東側は幅員4.05mの道路(法42条第1項1号道路)があり、二面からの採光で◎
人気の平屋で延床面積24.21坪とゆったり設計
※完成時期は担当者までお問い合わせください

おひとりでお住まいになられる方もご家族でお住まいになられる方も
全36区画新造成地内の新築平屋分譲はいかがでしょうか?

公共施設、銀行、郵便局から、スーパーマーケット、コンビニなど、車で数分圏内に多数あり!
新造成地内で周りも新しい方が多く、地域の関りも安心です!

地図

※地図上の物件位置は近隣に物件が所在することを表すものであり、実際の物件所在地とは異なる場合がございます。

周辺施設(18件)

  • 根上南部保育園
    約465m / 徒歩6分
    根上南部保育園
  • 浜小学校
    約1,135m / 徒歩15分
    浜小学校
  • 根上中学校
    約1,047m / 徒歩14分
    根上中学校
  • 能美市根上ふれあいプール
    約1,133m / 徒歩15分
    能美市根上ふれあいプール
  • 高坂公園
    約696m / 徒歩9分
    高坂公園
  • 根上総合文化会館 タント
    約1,760m / 徒歩22分
    根上総合文化会館 タント
  • 翠ヶ丘いこいの広場キャンプ場
    約1,960m / 徒歩25分
    翠ヶ丘いこいの広場キャンプ場
  • 全日食チェーンR&Fヤマシタ
    約704m / 徒歩9分
    全日食チェーンR&Fヤマシタ
  • マルエー 根上店
    約2,049m / 徒歩26分
    マルエー 根上店
  • イオン小松店
    約4,501m / 徒歩57分
    イオン小松店
  • ファミリーマート能美道林店
    約593m / 徒歩8分
    ファミリーマート能美道林店
  • クスリのアオキ 根上店
    約2,062m / 徒歩26分
    クスリのアオキ 根上店
  • 能美市立病院
    約1,826m / 徒歩23分
    能美市立病院
  • 北國銀行 根上支店
    約1,684m / 徒歩22分
    北國銀行 根上支店
  • 根上道林郵便局
    約469m / 徒歩6分
    根上道林郵便局
  • 根上図書館
    約1,788m / 徒歩23分
    根上図書館
  • 能美市根上サービスセンター
    約1,445m / 徒歩19分
    能美市根上サービスセンター
  • 能美根上駅
    約1,528m / 徒歩20分
    能美根上駅

営業時間:9:00~18:00 / 定休日:火曜日(月3)、水曜日、年末年始、盆、他

ジョイタウン道林 能美市 浜町 平屋 新築分譲 3LDKの物件詳細

所在地 石川県能美市浜町 辰1番2
交通 IRいしかわ鉄道 「能美根上」駅 徒歩18分
浜町南バス停下車 徒歩2分
価格 2,390万円
間取り 3LDK
LDK 16.0帖 1室 / 洋室 6.0帖 1室 / 洋室 5.2帖 1室 / 和室 4.5帖 1室 /
築年月(築年数) 2026年 7月予定(建築中) 主要採光面
建物構造 木造 階数 1階建
私道負担面積 セットバック
接道状況 二方 (南西側6.0m 間口5.7m) (北東側4.0m 間口9.0m)
建ぺい率/容積率 60%/ 80% 土地権利 所有権
地目 宅地 地勢
土地の権利形態
都市計画 非線引区域 用途地域 第一種低層住居専用地域
その他法令上の制限
国土法届出 不要 取引態様 売主
現況 引渡し 相談
駐車場 空き台数:2台 、 有
設備条件 公共下水 / 公営水道 / フローリング / オール電化 / 照明器具付き / IHクッキングヒーター / システムキッチン
その他条件
備考
周辺の学校
建築確認番号 第IKJC25-7188号 物件番号 98835909
情報公開日 2026年2月10日 次回更新予定日 2026年2月24日
取引条件の有効期限 2026年2月24日
取扱い会社 株式会社ジョイント21
〒921-8161
石川県金沢市有松1丁目1-1
石川県知事(6)第3535号
(公社)石川県宅地建物取引業協会会員 北陸不動産公正取引協議会加盟

情報の見方

営業時間:9:00~18:00 / 定休日:火曜日(月3)、水曜日、年末年始、盆、他

情報の見方

所在地 物件の住所を表示。(詳細住所は表示していない場合もある)
交通 物件(部屋)の沿線駅・バス停を表示。(複数駅・バス停の利用が可能な場合は最大3件まで)
間取り/詳細 数字は居室数を表示。LDKはそれぞれ「リビング」「ダイニング」「キッチン」、S(納戸)とは「納戸」「サービスルーム」「マルチルーム」「フリールーム」など建築基準法第28条に適合していないため、居室と認められない納戸その他の部分を表す。
価格 販売されている住戸の価格を表示。仲介手数料は含まない。
管理費 共同住宅の設備その他共用部分の維持および管理をするために必要な費用を表示。
修繕積立金 共用部分の修繕のために積立てる金額を表示。
×